🌱 Cocon Circulair
Cocon Circulair, de nieuwe circulaire en sociale hub in Sint-Niklaas, wordt onze thuisbasis. Verwachte toegang: maart 2026, daarna inrichting. Beschikbaarheid communiceren we hier.
De voormalige fabriekssite wordt stap voor stap omgevormd tot een plek waar makers, ambachtslieden, circulaire ondernemers en opleidingen samen werken en leren.
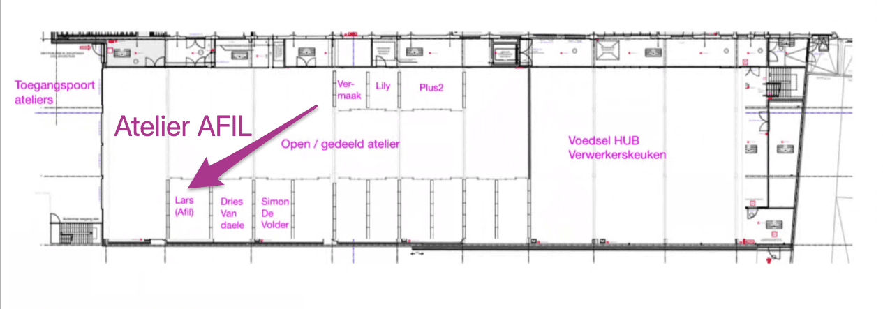
Afil Atelier – locatie
Atelier Afil bevindt zich in Cocon Circulair in Sint-Niklaas.
Cocon Circulair is gevestigd in de voormalige Nobels-Peelman-gebouwen, tussen de Heistraat en de fietswegel Mechelen–Terneuzen. In deze gebouwen heeft Afil zijn atelier.
📍 Cocon Circulair – Heistraat 115b, 9100 Sint-Niklaas (opent in Google Maps)
🚶♀️🚲 Voor bezoekers
Bzoekers komen het best binnen via de fietswegel Mechelen–Terneuzen.
Deze ingang is gemakkelijk bereikbaar via de parking in de Atomiumstraat.
🚚 Leveringen
Leveringen gebeuren via Heistraat 135b.
Locatie en sfeer
Hieronder zie je een luchtfoto van de Cocon-site, het grondplan en de Atelier.




Waarom Cocon?
Ik koos bewust voor Cocon omdat het perfect aansluit bij de kern van mijn activiteit: messen en gereedschap herstellen in plaats van vervangen.
Circulaire ambacht is hier geen slogan, maar dagelijkse praktijk:
- Materialen krijgen een tweede leven
- Ruimtes worden opgebouwd met recup
- Kennis wordt gedeeld tussen iedereen die er rondloopt
Een levendige werkplek
Wat Cocon bijzonder maakt, is de mix van stilte en energie.
Je werkt in een rustig atelier, maar voelt tegelijk dat hier dingen in beweging zijn:
- Opleidingen van het OOC
- Projecten van Den Azalee
- Lokale makers die nieuwe ideeën testen
- Buurtbewoners voor reparatie, workshops of gewoon nieuwsgierigheid


Meer dan een werkplaats
Voor mij is dit de ideale plek om ambachtelijk slijpwerk te combineren met kennisdeling.
Een atelier dat meer is dan een werkplaats — een kleine circulaire micro-wereld waar je meteen ziet wat mogelijk wordt als mensen kiezen voor:
- Herstellen in plaats van weggooien
- Leren van elkaar
- Samenwerken aan een duurzame toekomst


📍 Enkele links
Adres: Heistraat 135b, 9100 Sint-Niklaas
Adres: Heistraat 115, 9100 Sint-Niklaas
Adres: Nobels-Peelmanstraat 15A, 9100 Sint-Niklaas